A Jazz Loft Aquincum Apartments kiváló minőségű lakások éven belüli és hosszútávú bérlésére nyújt széleskörű megoldásokat. Foglalja le apartmanját budapesti tartózkodásához a Jazz Loft Aquincumban!

Hosszútávú bérlésre kínálunk a Jazz Loft Aquincum Apartmentsben egy 81,5 m² alapterületű lakást 10,6 m²-es tető terasszal és belső kertes kilátással.
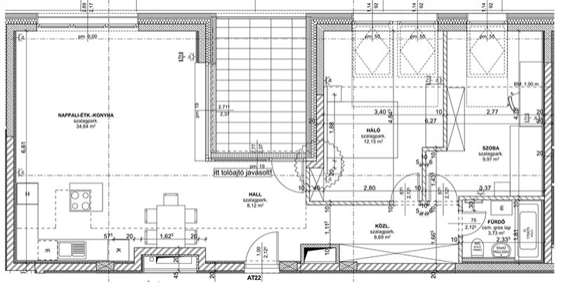
A kínált ingatlan az épület tetőterében, az 2-es lépcsőházban helyezkedik el. Az épület pince szintjén zárt garázsban parkoló beálló bérelhető az ingatlanhoz, mely az épületből közvetlen megközelíthető. A lakás jó helykihasználással rendelkezik, melyhez kényelmesen nagy, belső kertre néző terasz tartozik. Világos, tágas terek és egyedi építészeti megoldások jellemzik a nappali-étkezőt és a konyhát. A hálószobák külön bejáratúak, melyek 8-12 m² nagyságúak.



A lakás alapfelszereléséhez tartozik a teljesen kiépített konyha, korszerű konyhagépekkel telepítve. Az ingatlan korszerű falfelület fűtéssel és hűtéssel rendelkezik, ablakain fényvisszaverő árnyékolók vannak telepítve, így alacsony rezsiköltség tervezhető.
Az internet és az TV szolgáltatást a bérleti díj nem tartalmazza.
Bútorozási lehetőséggel is bérelhető az apartman. Egyedi kialakítása és elhelyezkedése tökéletes választássá teszi pároknak vagy családosoknak.
Kaució: 2 havi bérleti díj + 1 havi bérleti díj előre fizetés
Rezsi: fogyasztás alapján, egyedi méréssel


Bérlésre kínálunk a Jazz Loft Aquincum Apartmentsben egy 59,1 m² alapterületű lakást, 9,2 m²-es kertkapcsolatos terasszal és belső kertre néző kilátással! További információkért hívja a 06 20 224 2776-os telefonszámot!

Bérlésre kínálunk a Jazz Loft Aquincum Apartmentsben egy 70,4 m² alapterületű lakást, 9,2 m²-es kertkapcsolatos terasszal és belső kertre néző kilátással.

Bérlésre kínálunk a Jazz Loft Aquincum Apartmentsben egy 45,3 m² alapterületű lakást 9,2 m²-es kertkapcsolatos terasszal és belső kertre néző kilátással

Bérlésre kínálunk a Jazz Loft Aquincum Apartmentsben egy 54,7 m² alapterületű lakást 9,2 m²-es kertkapcsolatos terasszal és belső kertre néző kilátással

Bérlésre kínálunk a Jazz Loft Aquincum Apartmentsben egy 83,3 m² alapterületű lakást, 9,2 m²-es kertkapcsolatos terasszal és belső kertre néző kilátással.

Bérlésre kínálunk a Jazz Loft Aquincum Apartmentsben egy 90,2 m² alapterületű lakást 9,2 m²-es kertkapcsolatos terasszal és belső kertre néző kilátással

Bérlésre kínálunk a Jazz Loft Aquincum Apartmentsben egy 138,4 m² alapterületű lakást 8,1 m²-es kertkapcsolatos terasszal és belső kertre néző kilátással

Hosszútávú bérlésre kínálunk a Jazz Loft Aquincum Apartmentsben egy 112,7 m² alapterületű lakást 20 m²-es erkéllyel és belső kertes kilátással.

Hosszútávú bérlésre kínálunk a Jazz Loft Aquincum Apartmentsben egy 53,5 m² alapterületű lakást 4,5 m²-es erkéllyel és belső kertes kilátással.

Hosszútávú bérlésre kínálunk a Jazz Loft Aquincum Apartmentsben egy 39,8 m² alapterületű lakást 4,5 m²-es erkéllyel és belső kertes kilátással.

Hosszútávú bérlésre kínálunk egy igényes, 52,2 m² alapterületű lakást a Jazz Loft Aquincum Apartmentsben, 4,5 m²-es erkéllyel és belső kertes kilátással.

Bérlésre kínálunk a Jazz Loft Aquincum Apartmentsben egy 98,7 m² alapterületű lakást 6,5 m²-es erkéllyel és belső kertre néző kilátással

Bérlésre kínálunk a Jazz Loft Aquincum Apartmentsben egy 97,9 m² alapterületű lakást 6,8 m²-es erkéllyel és belső kertes kilátással.

Hosszútávú bérlésre kínálunk egy igényes, 52,3 m² alapterületű lakást a Jazz Loft Aquincum Apartmentsben, 4,5 m²-es erkéllyel és belső kertes kilátással.

Bérlésre kínálunk a Jazz Loft Aquincum Apartmentsben egy 39,8 m² alapterületű lakást 4,5 m²-es erkéllyel és belső kertre néző kilátással

Bérlésre kínálunk a Jazz Loft Aquincum Apartmentsben egy 52,9 m² alapterületű lakást 4,6 m²-es erkéllyel és belső kertes kilátással.

Bérlésre kínálunk a Jazz Loft Aquincum Apartmentsben egy 83,2 m² alapterületű lakást 4,5 m²-es erkéllyel és belső kertes kilátással.

Bérlésre kínálunk a Jazz Loft Aquincum Apartmentsben egy 82,9 m² alapterületű lakást 22,2 m²-es tetőterasszal és belső kertre néző kilátással

Hosszútávú bérlésre kínálunk a Jazz Loft Aquincum Apartmentsben egy 53,7 m² alapterületű lakást 4,6 m²-es erkéllyel és belső kertes kilátással.

Hosszútávú bérlésre kínálunk a Jazz Loft Aquincum Apartmentsben egy 39,8 m² alapterületű lakást 4,6 m²-es erkéllyel és belső kertes kilátással.

Hosszútávú bérlésre kínálunk a Jazz Loft Aquincum Apartmentsben egy 52,9 m² alapterületű lakást 4,6 m²-es erkéllyel és belső kertes kilátással.

Hosszútávú bérlésre kínálunk a Jazz Loft Aquincum Apartmentsben egy 92,84 m² alapterületű lakást 6,6 m²-es erkéllyel és belső kertes kilátással.

Bérlésre kínálunk a Jazz Loft Aquincum Apartmentsben egy 98 m² alapterületű lakást 6,8 m²-es erkéllyel és belső kertes kilátással.

Bérlésre kínálunk a Jazz Loft Aquincum Apartmentsben egy 52,3 m² alapterületű lakást 4,5 m²-es erkéllyel és belső kertes kilátással.

Bérlésre kínálunk a Jazz Loft Aquincum Apartmentsben egy 39,9 m² alapterületű lakást 4,5 m²-es erkéllyel és belső kertes kilátással.

Bérlésre kínálunk a Jazz Loft Aquincum Apartmentsben egy 53,7 m² alapterületű lakást 4,5 m²-es erkéllyel és belső kertes kilátással.

Bérlésre kínálunk a Jazz Loft Aquincum Apartmentsben egy 51,6 m² alapterületű lakást 5,3 m²-es erkéllyel és belső kertes kilátással.

Bérlésre kínálunk a Jazz Loft Aquincum Apartmentsben egy 130,5 m² alapterületű lakást 4,6 m²-es erkéllyel és belső kertes kilátással.

Hosszútávú bérlésre kínálunk a Jazz Loft Aquincum Apartmentsben egy 72 m² alapterületű lakást 23,4 m²-es tetőterasszal és belső kertes kilátással.

Hosszútávú bérlésre kínálunk a Jazz Loft Aquincum Apartmentsben egy 79,7 m² alapterületű lakást 10,6 m²-es tetőterasszal és belső kertes kilátással.

Hosszútávú bérlésre kínálunk a Jazz Loft Aquincum Apartmentsben egy 61,2 m² alapterületű lakást 17,8 m²-es tetőterasszal és belső kertes kilátással.

Hosszútávú bérlésre kínálunk a Jazz Loft Aquincum Apartmentsben egy 58,8 m² alapterületű lakást utcai kilátással.

Hosszútávú bérlésre kínálunk a Jazz Loft Aquincum Apartmentsben egy 116 m² alapterületű lakást 18,1 m²-es tető terasszal és belső kertes kilátással.

Hosszútávú bérlésre kínálunk a Jazz Loft Aquincum Apartmentsben egy 81,5 m² alapterületű lakást 10,6 m²-es tető terasszal és belső kertes kilátással.

Hosszútávú bérlésre kínálunk a Jazz Loft Aquincum Apartmentsben egy 68,1 m² alapterületű lakást 3,4 m²-es tető terasszal és belső kertes kilátással.

Hosszútávú bérlésre kínálunk a Jazz Loft Aquincum Apartmentsben egy 121,2 m² alapterületű lakást 4 m²-es tető terasszal és belső kertes kilátással.

Hosszútávú bérlésre kínálunk a Jazz Loft Aquincum Apartmentsben egy 137,6 m² alapterületű lakást 16,8 m²-es kertkapcsolatos terasszal és belső kertes kilátással.

Hosszútávú bérlésre kínálunk a Jazz Loft Aquincum Apartmentsben egy 91,3 m² alapterületű lakást 16,8 m²-es kertkapcsolatos terasszal és belső kertes kilátással.

Hosszútávú bérlésre kínálunk a Jazz Loft Aquincum Apartmentsben egy 60 m² alapterületű lakást 8,4 m²-es kertkapcsolatos terasszal és belső kertes kilátással.

Hosszútávú bérlésre kínálunk a Jazz Loft Aquincum Apartmentsben egy 129,6 m² alapterületű lakást 19,3 m²-es erkéllyel és belső kertes kilátással.

A Jazz Loft Aquincum Apartments kínálatában most hosszú távú bérlésre elérhető egy prémium lakás, melynek alapterülete 96,4 m², valamint két erkéllyel és belső kerti kilátással rendelkezik.

Hosszútávú bérlésre kínálunk a Jazz Loft Aquincum Apartmentsben egy 90,1 m² alapterületű lakást 11,1 m²-es erkéllyel és belső kertes kilátással.
Bérleti díjaink széles skálán mozognak, melyeket egyedi igényekhez szabva alakítottunk ki. Fontos számunkra, hogy a megfelelő ajánlatadáshoz tudjuk, hogy jövőbeni bérlőnk.
A Loft életstílus olyan lakástípusokat jelöl, amelyek eredetileg ipari épületek – például régi gyárak vagy üzemcsarnokok – átalakításával jöttek létre. Ezek a terek nagy alapterületűek, egyterű elrendezésűek, és a nyitott, tágas helyiségek adnak nekik egy különleges, modern hangulatot. A Loft lakások a letisztult formák, a nagy ablakok, az ipari stílusú elemek és az elegáns, minimalista dizájn ötvözetét kínálják, miközben a városi élet és a kreatív környezet hangulatát tükrözik.
Óbuda Budapest városrésze a III. kerületben, nemcsak történelmi, hanem természeti értékekben is rendkívül gazdag, emelett kiváló infrastrukturális ellátottsággal rendelkezik.

Délkelet-Európa a kreativitás bölcsője – vallja a BigSEE, a kreatív gazdaság szlovéniai ernyőszervezete, amely évről évre szemlézi és díjazza az innovatív megoldásokat. 2020. nyarán, építészet kategóriában, a Jazz Loft Aquincum Apartments a BigSEE Architecture Award egyik díjnyertes projektje lett.

Létezett egy leállt építkezés óbudán, ami élő mementóként illusztrálta az építőipart is sújtó 2008-as válságot majd’ egy évtizeden át. Nagy várakozások után szemlesütve kerülgettük a felerészben elkészülve lakottan, másik felében torzóként, reménytelen pusztulásba ragadva rohadó Jazz Loft elnevezésű társasházat hosszú éveken át. Ha az építészet megfagyott zene, akkor ez a jazzfutam furcsa atonális, repetitív szekvenciába hurkolódva ismételgette önmagát. Itt az idő dekonstruált, nem az építész, nem a zenész.

A Jazz Loft komplexumára pillantva mindenki számára egyértelmű, hogy a loftok karakterének meghatározó szerkezetei a homlokzati nyílászárók. Gazdag formai, szín, szerkezeti, hő- és hangtechnikai lehetőségei miatt a loftok revitalizációinak a legmegfelelőbb anyaga a nyílászárórendszerek tekintetében az alumínium.

Óbudán főként hosszú távú bérlésre alakították ki a kétszobás (40 m²-es), háromszobás (60 m²-es) és a kétszintes tetőtér-beépítéses (80–100 m²-es) loftlakásokat. Kiváló minőségben, azonos stílusban, innovatív-fenntartható gépészeti rendszerekkel felszerelve. Ennél jobb helyzet építész tervező számára aligha képzelhető el.


A Jazz Loft Aquincum Apartments Óbuda szívében kínál apartmanokat kiadásra flexibilis bérlési lehetőségekkel.

Készítettünk egy rövid, képes bemutató videót magunkról.

Ünnepélyes keretek között megnyitotta kapuit a Jazz Loft Aquincum Apartments.